创意无限的公共厕所设计,这样的公共厕所你造么?
出门在外也是需要方便的,上厕所可是每个人都需要解决的问题。很多人笑谈出门旅游尤其是跟团游,一下车基本都是找公共厕所,上厕所,可想而知公共厕所的重要性,出门在外的人都应该好好谢谢发明公共厕所的人。一般来说,公共建筑(如车站、商店、影院、展览馆、办公楼等)附设的厕所,都可以称为公共厕所。那么你知道创意无限的公共厕所设计是什么样子的么?品索教育为你揭晓,这样的创意公共厕所你造么?
创意公共汽车厕所设计,内置洁净系统给人最大的方便与舒适
传统公共汽车上的厕所因为其狭小的空间和有限的卫生管理,让众多乘客望而却步。针对这种情况,委内瑞拉设计师Sergio Alonso奉上了一份现代化的高新设计—新型公共汽车厕所。这款新设计通过对社会中不同厕所使用情况的调查,不仅适合成年男性和女性,同时也非常适合儿童的使用,无论是空间的大小,还是内置的洁净系统都为人们送上了最大的方便与舒适。










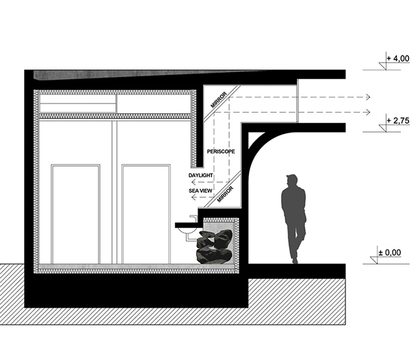
创意观赏风景公共厕所,可以在洗手间内欣赏美丽的风景的设计
对于很多风就优美的景点来说,如果建立一些很普通的卫生间会把游客的好兴致打破。为了更好的配合周围的环境,Adam Wiercinski设计了这个观赏风景公共厕所。它的造像非常的简洁,充满的几何的形态但是却不显得单调,死板。青灰色的墙壁使得它无论在什么环境下都不显得突兀,能够很好的和周围的环境融为一体。它前面宽大的屋檐便于游客避雨,休息和观赏风景。除此之外它还有一个特殊的构造,根据潜水艇潜望镜的原理,用户可以在洗手间内欣赏美丽的风景,而且不用担心外面的游客看到里面的情况,非常的方便,非常的享受。








机器人厕所创意设计,专为肢体伤残或健康欠佳的人设计
21世纪的今天,高科技的机器人产品已经屡见不鲜,如今,一款专为肢体伤残或健康欠佳的人设计的机器人厕所再次吸引了人们的注意。这款被命名为“Nature’s Call”的高新产品以一个互动式的装置作为主体,清洁方便成为其最明显的主题。用户在使用时既能享受到电子产品带来的舒适安逸,同时也确保了自身的个人隐私,可谓益处多多。



绅士厕所Gentolet创意设计,男女厕所合一提升厕所空间的利用率
在商场或一些公共场合,经常有女厕所门口排长队而男厕所却空空如也的局面。设计师构想的这个绅士厕所Gentolet将男女厕所“合二为一”,即厕所中间是一个个双向门的蹲便单间,男女都可以分别打开,但如果有一方先开门,另一边的门即刻紧锁并收到里面有人的提示,希望这样的设计能够解决女士的燃眉之急,同时提升厕所空间的利用率。
设计:Chen Shih-Sheng & Lai Iu-Ru



深圳•南山
收藏